一期占地88.4亩,总建筑面积20万㎡,由14栋高层组成。融入低密度、高绿化、超宽楼间距、滨水社区、智能社区、教育社区等人性化设计理念,打造济阳高端社区。
金湖国际采用地中海风格设计,融合西班牙浪漫生活方式,和传统的居住习惯,建筑采用纯板楼规划,追求高品质、树立品牌是公司的最终目标。投资商陕西华宇实业有限公司是国家房地产开发一级资质企业,中国房地产开发综合实力50强企业,国家AAA级质量诚信单位,品牌房企值得信赖!
伴随济南“北跨”战略的推进,济阳经济的迅速腾飞,及未来轻轨建设,济北开发区将成为济阳未来核心区域,金湖国际未来将成为这一区域的核心焦点。上班在济南,居住到济阳已成为现代白领的主流生活方式。
基本信息
规划信息
配套信息
销售信息
优选顾问推荐
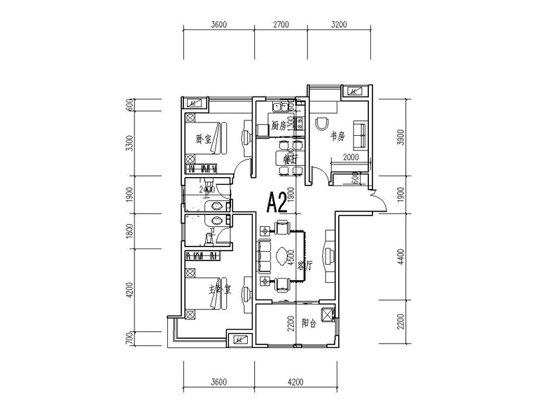
各个空间户型方正,后期空间利用率高;全明通透户型,居住舒适度较高,整个空间采光充足,利于后期居住;入户门进厨房需要穿过客厅;客厅、卧室、卫生间和厨房等主要功能间的尺寸以及比例适中,有利于采光和通风,居住起来舒适、方便;公摊高于15%且低于25%,符合住宅公摊正常范围。
各个空间户型方正,后期空间利用率高;全明户型,各部分空间均有窗,可保证整体空间采光和通风,居住舒适度好;居室布局合理,通风良好,动静分离,兼顾到了卧室和卫生间的私密性;客厅、卧室、卫生间和厨房等主要功能间的尺寸以及比例适中,有利于采光和通风,居住起来舒适、方便;公摊高于15%且低于25%,符合住宅公
各个空间户型方正,后期空间利用率高;全明户型,各部分空间均有窗,可保证整体空间采光和通风,居住舒适度好;整个户型空间布局合理,做到了干湿分离、动静分离,方便后期生活;客厅、卧室、卫生间和厨房等主要功能间的尺寸以及比例适中,有利于采光和通风,居住起来舒适、方便;公摊高于15%且低于25%,符合住宅公摊

楼盘开盘、降价、优惠等信息,将会在第一时间短信通知您!
置业专家将在2小时内与您联系(8点-23点),请保持电话畅通。
请验证手机号验证码完成提交
置业专家将在2小时内与您联系(8点-23点),请保持电话畅通。
如当前手机号遗失,请联系0755-33526610进行人工修改
如当前手机号遗失,请联系0755-33526610进行人工修改
此楼盘如有优惠/变价通知,我们会及时通知您!
138****8965已经申请
137****8955已经申请
157****4365已经申请
183****8115已经申请
187****5968已经申请
159****8233已经申请