层以下为裙楼层,20层以上为南北对称的塔楼(无4层、13层、14层)。 19层以下标准层面积约2700平方,21层以上南北塔标准层1050平方,使用率约62%;1-8层层高4.8米,净高3.2米;9层以上层高3.7米,净高2.65米;走廊2.4米。1-8层物业费20元/平方/月;9层以上物业费14.5元/平方/月。大厦建设方案由美国LTC设计公司设计,造型古朴风情与现代气质兼容。主体采用框筒结构,设计合理,空间利用率高;18部日本原产三菱高速电梯,分高、中、低区域运行,极大的减少了候梯时间;2部上海三菱货梯,确保大宗货物的方便搬运;完善的安全保卫监控系统、消防控制报警系统,确保大厦安全万无一失;完善的智能化网络体系,为入住客户提供快捷方便的信息服务;采用美国约克中央空调系统主机,通过楼宇自控系统适时检测调节各区温度、空气新鲜度,使大厦内四季如春。外墙全部干挂花岗岩,豪华气派,室内装饰用料考究,地面及墙面以意大利进口洞石为主,高贵典雅。 大厦委托具有物业管理一级资质的泛海物业进行物业管理,并以人为本,专注商务,以前瞻性的思考,为企业提供未来发展空间。大厦突出体现“高规格、高层次、高品位、国际化”的特色,它所提供的开放性、接纳性建筑语境都开创了济南写字楼的先河。 大厦按照国际甲级写字楼标准建设,为单一产权纯写字楼,客户以银行、保险等金融机构为主,同时吸引外资企业、集团公司和大型实业公司区域总部。现大厦入驻的知名客户有:微软、IBM、壳牌石油、德国MAN集团、中化工油气、赛诺菲、华润置地、招商信诺、施维雅、爱普生、复兴、民生、恒生银行、大唐、中融、中荷人寿、悦达起亚、宜信、新东方、太平洋保险、阿里巴巴等。
基本信息
规划信息
配套信息
优选顾问推荐
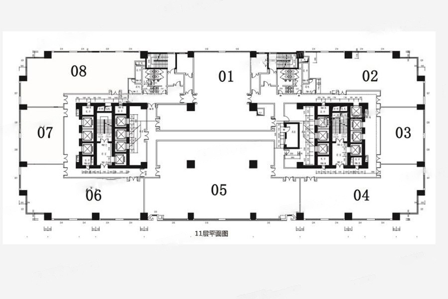
整体户型方正,活动区域开阔,居住舒适度高;全明通透户型,居住舒适度较高,整个空间采光充足,利于后期居住;整个户型空间布局合理,做到了干湿分离、动静分离,方便后期生活;客厅、卧室、卫生间和厨房等主要功能间的尺寸以及比例适中,有利于采光和通风,居住起来舒适、方便;公摊小,得房率较高。

楼盘开盘、降价、优惠等信息,将会在第一时间短信通知您!
置业专家将在2小时内与您联系(8点-23点),请保持电话畅通。
请验证手机号验证码完成提交
置业专家将在2小时内与您联系(8点-23点),请保持电话畅通。
如当前手机号遗失,请联系0755-33526610进行人工修改
如当前手机号遗失,请联系0755-33526610进行人工修改
此楼盘如有优惠/变价通知,我们会及时通知您!
138****8965已经申请
137****8955已经申请
157****4365已经申请
183****8115已经申请
187****5968已经申请
159****8233已经申请